Projekte

Programm:Verwaltung
Auftragsart:Wettbewerb
Zeitraum:2025
Bauherrschaft:Gemeinde Tafers
ARGE mit:Maximimilian Fink Architekt ETH

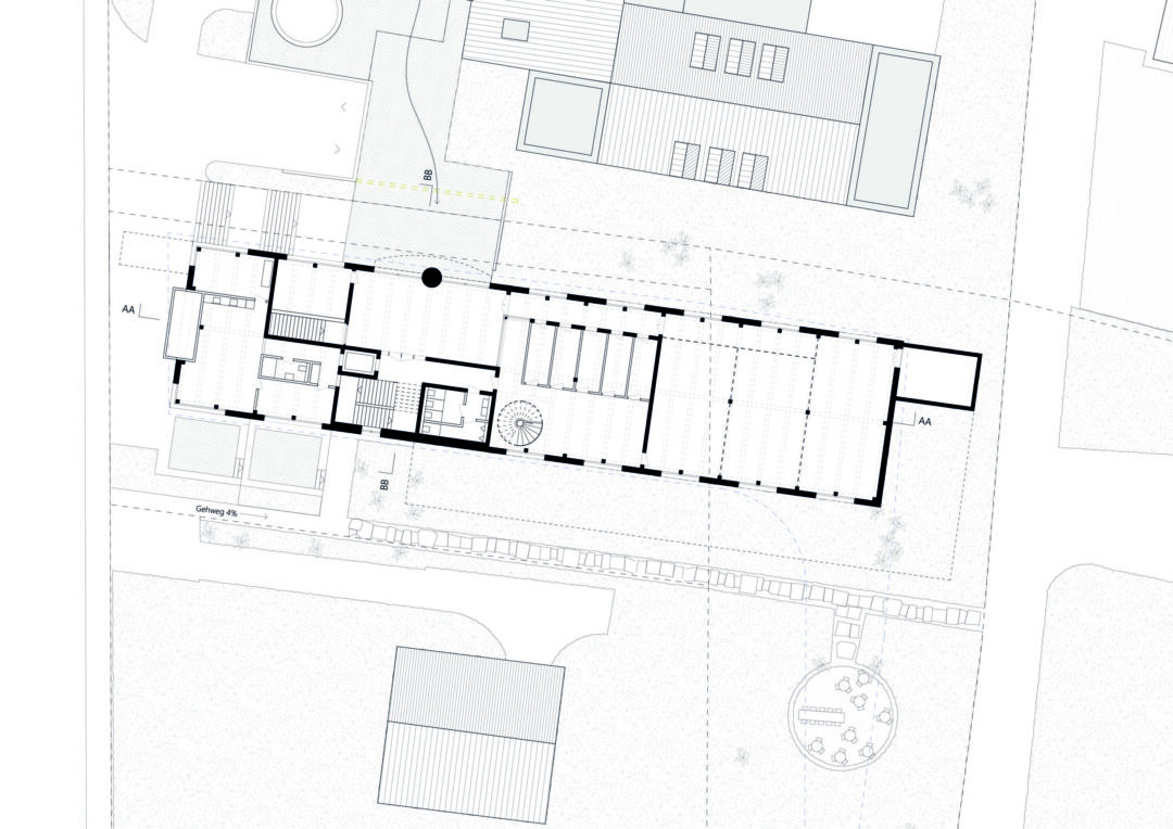
Südlich des historischen Zentrums, entlang der Schwarzseestrasse, befindet sich das bestehende Verwaltungsgebäude der Gemeinde. Es ist in seiner Setzung zur Strasse hin zurückversetzt und zeigt eine klare architektonische Haltung der Postmoderne. Die bestehende Vorplatzanlage des Amtshauses bildet die Ausgangslage für den geplanten Erweiterungsbau. Der Neubau lehnt sich in seiner Sprache daran an und stärkt die Bedeutung des Orts als öffentliches Zentrum. Das zu beplanende Grundstück liegt unmittelbar südlich des bestehenden Amtshauses. Es ist langgestreckt und folgt einer sanften Hanglage. Die Umgebung entlang der Schwarzseestrasse ist primär durch Wohnnutzungen geprägt, mit zurückversetzten Bauten und grosszügigen Gärten. Der neue Baukörper orientiert sich in seiner Längsausrichtung am Bestand und folgt der natürlichen Topographie. Ein Höhenversatz akzentuiert die Zweiteilung des Volumens und markiert typologisch den Übergang vom zurückversetzten Bestand zur strassenseitigen Präsenz des Neubaus. Der Neubau tritt als einziges Gebäude an die Strassenflucht heran und erhält dadurch einen prägnanten, identitätsstiftenden Charakter. Durch seine Setzung ist er sowohl vom Dorfkern im Norden wie auch aus südlicher Richtung klar wahrnehmbar. Trotz seiner unaufgeregten Volumetrie setzt er durch seine Positionierung ein klares Zeichen für die neue öffentliche Adresse von Gemeinde und Verwaltung.

Hauptnutzfläche HNF:1’672 m2
Gebäudevolumen GV:

10’600 m3

Energiestandard:Minergiestandard
Bauweise:Hybridbauweise
Fassade:Hinterlüftet, Holzverkleidung
Baumanagement:
Tragwerk:
Bauphysik, Bauakustik:
Haustechnik:
Elektro: